01-设计背景
创客中心位置行政楼(星空楼)二层,属于一个完全开放的空间,四周原无任何窗户,下雨时地面有积水,地面为水磨石地面,天花灰色油漆,该空间有438平方,学校室内空间使用本就不够,特此便把该空间作为学校创客中心使用。经过建筑公司核准过承载及风阻后,我们决定沿三层图书馆铝合金窗外观统一,拆除现有栏杆,扩大空间至窗边,把二层的窗户做起来,形成一个封闭的空间。

*设计前现场照片
02-思考理念
创客中心以孩子为视角,是孩子课后最喜欢的地方,不仅能够玩游戏,还能学习到知识,以「人类创造」为主导,循序渐进的进程为主线,感受自然-模仿万物-元素碰撞-创造新生,在这一个过程中,通过声光电互动装置,引导小朋友开拓创新思维,接下来就跟着我们一起,探索未知,开启创造之路。

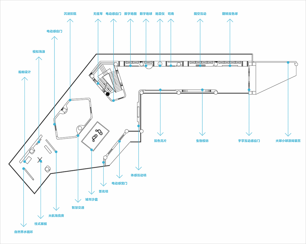
*平面布置图
03-斜大门入口设计

此处是进入创客中心的斜大门,(创客中心共有三个大门,分别是正大门、斜大门、阶梯门,如上平面图),斜大门地面原是水泥地面,有一定坡度,为使地面同学校其他地面统一,我们使用水磨石处理,表面嵌不锈钢条增加阻力而防滑。
*大球小球游戏装置
图右墙我们设计成一个主题墙,示意此刻你已进入创客中心,立体发光字阐述着创客中心的核心:探索与创造。墙面以大球小球装置为中心,玩家把海洋球投进入口,球会在管道里随气流运动或自由落体运动,可以通过升降杆改变球运动的方向,让球掉落在收纳箱里或者一直在循环运动,其互动性强,新奇有趣味。
*手掌互动感觉门
图中间为我们穿过这道感应门就会进入到创客中心内部,将手掌放置于感应区内,触发通电机制,点亮灯组,当整个图案灯组点亮时,感应门逐渐打开。
04-立面墙设计

此立面进入创客中心后的右墙,有双色球、隔空互动、司南、地震仪、数字世界、数字地图,六个内容;穿过四个不同弧度的门洞,就可以去到背面墙,参观带有展览展柜的校史长廊展示。

*翻转双色球
右面第一个装置是想象力双色球,每一个球都有两种颜色,翻转不同的小球,能组合成我们想要的图案和文字。
*隔空互动
往左过来,这是隔空互动的一个装置,站在这里将手放在感应区的范围里,利用手势识别设备,实现对虚拟物体的互动控制,观众不需要接触任何设备就能与画面进行互动,就能控制屏幕里面的物品。

*司南
继续往左,这是一个司南,是古代用来辨别方向的一种仪器。
*真实地震仪。
继续往左,这是一个真实的地震仪,还原了科学家张衡的杰作,它的原理是如果有地震发生,相应方向的龙口的龙珠就会掉到蟾蜍的口中。
*数字地球
继续往左,这是一个可互动数字球面地球,通过与屏幕的触控互动,可以在上面查看世界的每一个角落,了解地球的组成等知识。
*数字地图
继续往左,这是一个数字中国地图,将整个中国的地图数据收录在里面,可以实时查阅位置和相关的数据信息。
05-立面墙设计

此面墙为上述04立面的对面,对应的是生物模彷、双色亮片互动内容规划。
*生物模彷
通过上下镜面模型的对比,上面是自然界中的动物,下面是科技产物。如大雁VS飞机、蜻蜓VS直升机、鲨鱼VS潜艇,生动直接的展示「模仿与创造」这一进程。
*双色亮片
用双手拨动亮片布料、手指拨动可把另一面翻转,释放灵感,呈现各种图案与文字。
06-阶梯门立面设计

沿着04、05立面前往,我们来到阶梯门所在的立面,此处一共三个立面。

为了保证外部空间与内部的通透性,左右二边我们均做了半圆玻璃造型设计,右边半圆向下,左边圆向上,离玻璃一定距离处植入细管,起到警示作用,中间为外部阶梯通过该空间的电动感觉门就可以进来。
*无弦琴
地面及墙上的无弦琴装置,看似没有琴弦,实际上琴弦是由红外对射传感器组成的,观众伸手弹拨琴弦时,切割红外线,触发电声装置发声,无弦琴就能奏出美妙的乐章。
07-沉浸影院设计

向左行,我们来到智能交通沙盘和沉浸影院,沉浸影院它由曲面的六面体组成,共有二个进入口,内部呈全白状态,靠激光投射不同内容。

*入口外立面(一)

*虚拟现实应用的场景
*沉浸影院
进入到沉浸影院中,投影投射到四周及天花地板,构建真实场景,让人置身于宇宙、天空、 海底等场景。

*入口外立面(二)
08-智能交通设计

沉浸影院立面上的屏幕与前方的城市沙盘是一个整体内容,它旨在要学生去编程构造一个城市生态功能结构。
*智能交通
屏幕显示智能交通沙盘上小汽车主驾驶的视角,看着屏幕上的画面,身临其境感受城市、智能交通的科技魅力。

*城市沙盘
小孩们可以去编程构建一个城市,有高楼大厦、公路、汽车等,这是一个智慧交通系统,大家可以看到城市里的这辆汽车从家里出发,屏幕上就会相应显示看到司机眼前的画面,让大家看到智慧交通的便利与科技。
09-体感互动墙设计

沙盘的对面黄色墙为体感互动墙、通向外正大门的电动玻璃门、流动签名墙。
*体感互动墙
当体验者站在大屏幕前时,体感摄像头会将捕捉到的人体影像以实时剪影的形式呈现在大屏幕中 , 给人强烈的科技体验感。体验者做什么动作 , 大屏中的剪影就会做什么动作。
*流动签名墙
当我们参观完整个创客中心后,我们就可以用电子笔在这里签名,所签的字会经过白屏由台面最终流向天花尽头。
10-海洋互动区设计

透过沙盘往左走,我们来到海洋互动区,这里就自然界水循环、船舶设计、模拟海浪而展开设计,中间立柱式旋转展板则是对该三种装置的一个集体描述。

效果图左侧:墙面装置及立地圆柱装置,通过机电模型互动的方式展示自然界水循环的原理及过程。一共三种互动形式 , 分别代表自然界水循环中的「海内水循环」、「陆内水循环」和「海陆水循环」。
效果图右侧:绿色立地式装置,将「大海」封存在一个透明盒子里 , 借助杠杆原理上下摇动 , 一场波涛翻涌的海浪就可以呈现在你的面前,产品选取两种特制溶液 ,「大海」与「天空」层次分明 , 模拟真实海浪的感觉。

效果图左侧:屏幕及地台装置,通过 AR 增强现实技术,展示关于船舶的知识 , 超强的互动性让参与者在游戏中自然的学习,达到寓教于乐的目的。
效果图右侧:屏幕及地台装置,采用大富翁式回合制的游戏逻辑,阐述大航海知识竞赛,刺激的对抗过程、生动的卡通画面能够让参与者对于知识内容的记忆更加深刻。

最后出来到正大门的设计,同斜大门的设计亦同,通过手掌互动感觉门,则可以开启玻璃门,四周均不是不同厚度的不锈钢烤漆,面装超级发光字。
