策划前言
在上篇推文中,我们完成上述策略定位方案后,我们将策划精髓简练如下:01.餐饮经营品类:粤菜。02.品牌中文名:新悦淘。03.品牌英文名:XinYueTao。04.单店定位:石龙记忆主题餐厅。05.三大功能:早茶晚点、商务宴会、精致私房。06.品牌广告语:来石龙就吃新悦淘。07.品牌标榜:大众点评-石龙早茶榜第一。大众点评-石龙粤菜热门榜。08.品牌背书:2024石龙人气美食奖;2023石龙特色美食奖;2022石龙星级美食奖。09.名称释义:新(新派粤菜)。悦(近悦远来)。淘(搜罗美食)。10.品牌定位:石龙记忆-新派粤菜。11.产品理念:传承经典-原汁原味。12.品牌初心:食必求真-然后至美。13.经营主张:平(菜性价比高,实惠又经济)。快(上菜速度快,服务效率高)。靓(食材要新鲜,空间要格调)。正(味道要正宗,品质标准高)。14.三悦主张:近悦远来(做口碑)。喜闻悦见(接地气)。悦人悦己(会做人)。15.三新主张:食材时新(食材好)。烹艺求新(技艺好)。体验焕新(体验好)。16.品牌气质:品质、亲民、现代、岭南。17.空间风格:石龙元素+岭南骑楼。18.对标学习:台州新荣记& 广州炳胜公馆。
那我们如何把以上的这些<策略信息>转换为<视觉语言>呢?我们的品牌视觉将以传统与现代融合,打造一份专属于新悦淘(旗云店)专属的视觉形象。
A-品牌视觉设计

我们知道只要提到石龙就有二个视觉符号,一个是「石龙火车站」,一个是「举重」,我们把这二个视觉符号融入至视觉当中,形成强关联,只要一提到石龙餐饮就连想到新悦淘。
A-01.视觉基础

品牌主要图标合集,分别是「品牌主要标识、品牌盾形标识、石龙记忆-主题标志、主题餐饮-主题标志」构成了这个品牌最核心的视觉语言。

品牌主要图标合集,就是在新悦淘这个标志以下,我们把「品牌背书、品牌标榜、三新主张、三悦主张、三大业态」都统一视觉符号化,方便未来,品牌在视觉输出的时候统一复制与粘贴,减少传播混乱。

品牌基本元素汇总,则是统一把「主要识别、排版字体、主要颜色、品牌潮玩、石龙元素、非遗元素、价值图标」,统一规范化,就像是「做菜」前一样,把最基本的「调料」准备好,方便接下来我们在「做菜」的时候,不同菜品调取不同「调料」所需。

导视字体符号规范,我们在「字体」与「符号」上也作出统一规范,字体以「思源黑体」为主,符号以「简约图标」为主,希望未来在空间导视上与品牌视觉形成统一输出。

品牌颜色比例规范,在品牌颜色上我们有明确各个颜色色值,及各个颜色在视觉中点的比例规范,主要情况下:「以橙与金为主,黑白为辅,另外四色为点缀」。如特殊情况也可打破这个规范,只要能形成与视觉调性统一的画面风格,所谓法外无法。

品牌广告语「来石龙就吃新悦淘」,是一个「行动指令广告」,项目位置刚好位于东莞石龙火车站对面,一出火车站就能看到这一个广告语,我们希望能形成「石龙与新悦淘的强关联」,新悦淘也积极努力打造成为「石龙餐饮代表的一张名片」,欢迎来石龙,欢迎来新悦淘。

我们单店定位「石龙记忆主题餐厅」,提取石龙比较有代表的六项非遗元素「新昌鼓、麦芽糖、舞狮醒狮、竹编竹萝、红漆描花、豆皮鸡」,以插画的形式作为品牌辅助图形,融入至品牌视觉的创作中去。
A-02.视觉物料

*多色名片-分区使用。

*店铺名片-营业海报。

*咖啡餐饮-周边设计。

*石龙竹编-扇面设计。

*新品海报-设计规范。

*开业海报-设计规范。

*开业海报-设计规范。

*环保手袋-多色设计。

*石龙火菜-复刻设计。

*非遗主题-香片设计

*餐饮打包-手袋设计

*帆布手袋-设计规范

*餐饮打包-塑胶手袋

*保温打包-手袋设计

*品牌周边-帽子设计

*品牌周边-服装设计

*品牌周边-衬衫设计

*品牌周边-袜子设计

*品牌周边-胸章设计
A-03.潮玩设计

人格化设计:
我们以品牌创始人「妹姐」为原型,将其命名为「小妹姐」,把妹姐「热爱美食、热衷自驾、活泼开朗」的个性提炼成三个标签「烟火气哲学家、中华美食使者、中国版图上瘾者」;通过这三个标签,我们进行品牌人格化打造。
自我介绍
hello,我是小妹姐,热爱旅游,带上行李箱找遍世间好食材,青春有活力,对好食材执着,永远保持这一颗热爱的心。

造型设计:
以妹姐个性鲜明的「波浪头」为出发点,配以自驾游「工装裤」而设计,融入品牌辅助色,整体造型干净简约,圆润可爱。

潮玩简介:
叫我妹姐就好。一个被灶火焗了半辈子,仍想尝遍神州味的疯掌柜!
---新悦淘掌勺?。
石龙土著-自驾狂魔。
我的围裙系着三十年粤魂。
东江水泡大的石龙女儿,酒窝里酿着荔枝柴烧鹅的焦香。 别看烫着波浪卷穿背带裤,抡起桑刀可比自拍利索。裤角沾过敦煌沙,袖口蹭着景德瓷,最得意是让川渝花椒跳进老火汤,还振振有词:珠江水和长江浪,在砂里握手言和嘛!
四个轮子是我的移动灶台。
五十岁照样开越野车闯丙察察,后备箱永远藏着三件宝:东莞腊肠、紫砂汤煲、解腻新会陈皮。在喀纳斯颠勺炒牛河,洱海边蒸虾饺,年轻人笑我作?没试过用青海青稞粉做肠粉皮的人,可不懂什么叫胆量!

潮玩个性:
青春活力、永保童真。
石龙土生土长嘅地道东莞妹,把声未到笑纹先到,嘴角粒酒窝识放电!钟意扮靓靓:耳仔吊住闪,花裙衬住把大波浪,行过都带风……自家打骰「新悦淘」,个心入面得两味:食同玩!拖住个喼(行李箱)走遍五大洲,为咗搵啖好嘢,山长水远都杀到!最叻系将全球搜刮嘅靓食材,落返东莞嘅镬气爆炒---世界系我厨房,心水始终系屋企碗豉油!

潮玩金句:
心多多,胃大大!
五十岁嘅镬气,先够震住成个地球嘅风味!
呢个世界咁大,梗系要边食边玩啦!

潮玩海报:
自我简介-普通话版:
石龙老街坊+环球食材猎人。

潮玩立体:
妹姐,她土生土长东莞石龙人,经营新悦淘餐厅,热情开朗,爱笑有酒窝,钟爱饮食,喜欢穿搭,热爱旅游,热爱生活。搜罗全球美食,边游,边玩,边吃,发现地道美食,解析烹饪之法。
A-04.窗花设计

*窗花款式一
在空间风格上我们以「石龙元素+岭南骑楼」为主,我们在视觉上设计了三款窗花,延伸品牌的视觉配色,希望未来在空间上,能够融入配色,保持品牌的调性一致性。

*窗花款式二

*窗花款式三
此款窗花的设计,我们把品牌提炼的「三新三悦」主张,融入至窗花设计中,三悦主张指「近悦远来(做口碑)。喜闻悦见(接地气)。悦人悦己(会做人)」。三新主张指「食材时新(食材好)。烹艺求新(技艺好)。体验焕新(体验好)」。
A-05.菜谱设计
菜谱的设计不仅仅是展示菜品,更是融入石龙记忆非遗元素照片,希望每一个食客在点单之余增加了解我们石龙当下的风土人情。

*品牌故事
菜谱的策划摄影设计均由我们完成,菜谱由「开胃小菜、养生靓汤、位上佳肴、鲜美刺身、山河湖鲜、无鸡不宴、粤式烧味、厨师煮艺、啫啫镬气、香酥精选、悦淘辣味、潮式卤水、田园时蔬、主食精选、甜品终章」十五个菜品主题构成,以下为节选。

*本店介绍

*开胃小菜

*养生靓汤

*山河湖鲜

*香酥精选

*甜品终章
B-品牌空间设计

室内空间的设计,我们联合品瑞意筑叶锐设计,该建筑位于东莞石龙火车站对面旗云广场,隶属东莞国资东实集团,项目地理优越,地处石龙,紧邻茶山,与东莞火车站相邻,属于当前石龙最具规模的商圈之一,每一个乘坐火车到东莞站(石龙)的人,出站第一眼就能看到新悦淘,作为石龙门户,所以才有「来石龙就吃新悦淘」品牌广告语的诞生。
B-01.一楼空间设计

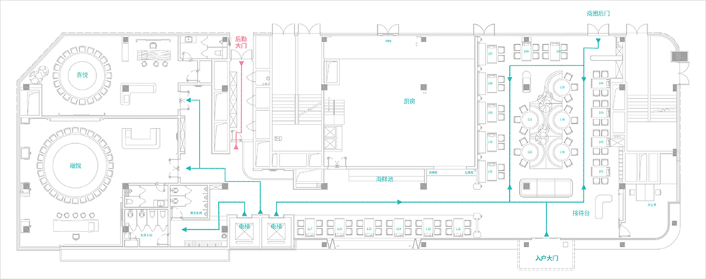
*一层平面布置图
新悦淘所在为该商场独栋建筑,分为上下二层,室内面积1300平方,可连通商场,畅通无阻。一楼层高够高,在与厨房楼面实际经营沟通后,决定把厨房放置在一楼,加设钢结构夹层进行,货物储存。一楼设有前厅收银、卡坐散坐、海鲜池、大包房、洗手间等功能。

*前厅入口

*后厅入口

*卡座区域

*福悦房设计

*福悦房设计

*一楼电梯间
B-02.二楼空间设计

二楼设有宴会厅舞台、九间中餐包房,一间KTV,洗手间等功能,能均满足各类早茶晚点、商务喜宴、精致私房等需求。

*包间通道设计

*宴会空间设计

*雅悦房设计

*标准房设计

*连通房设计
C-外观导视设计

*正面标识设计
建筑正立面左侧为巨幅海报,主题为品牌广告语「来石龙就吃新悦淘」,右侧分别「产品定位、品牌标识、三大功能、迎宾潮玩」,依次有序设计,是对对面走出火车站的每一位路人,无声的品牌宣传。

*右侧标识设计
右侧为双人扶梯,连接商场连廊,设计内容为「品牌标识、品牌标榜」,希望在建筑的每个立面,都能看到我们。

*左侧标识设计
左侧顶部为「品牌标识、产品理念」;下部为「品牌标识、三大功能、品牌定位」;我们希望在远处,在近处,都能直观的知道新悦淘位置。

*背面标识设计
建筑背面,面向商场内部空间,设为「品牌标识、主题餐厅图标、石龙记忆图标、品牌广告语、潮玩玻璃钢」,想依次告诉每一位消费者,我是谁?我做什么?我有什么亮点?但因项目落地成本考虑,部分内容有取消。
D-室内导视设计

*一楼前厅-入户标识

*一楼散座-品牌初心

*一楼散座-石龙记忆挂画

*一楼大厅-石龙火车站挂画

*一楼出菜口-产品理念标识

*一楼海鲜池-经营理念标识

*一楼洗手间-男女标识

*一楼福悦房-石龙记忆挂画

*一楼门牌-福悦房

*一楼门牌-喜悦房

*一楼电梯号标识

*电梯间楼层-指示导向牌

*二楼电梯间-荣誉标识牌

*二楼电梯间-新悦镁宴

*二楼洗手间-男女标识

*二楼门牌-银悦房

*一楼前台收银-品牌标识
E-落地实景照片

*建筑与空间简影

*建筑外立面标识

*一楼卡座区域

*一楼散坐区域

*石龙非遗陈列

*一楼福悦房实景

*一楼喜悦房实景

*二楼宴会厅实景

*二楼雅悦房实景

*二楼财悦房实景

*二楼连通房实景

*家具餐具细节

*家具餐具细节
F-在线营业盛况

*大厅宴会场景

*福悦房用餐场景

*非遗手信礼品设计

*石龙记忆非遗互动

*石龙记忆非遗展示

*石龙记忆非遗互动

*客户前台标识合影

到此结束,感谢新悦淘团队的信任,旗云物业的理解、品瑞意筑的协作,方才让本案在三个月内落地营业,为东莞石龙呈献美食代表之作。
