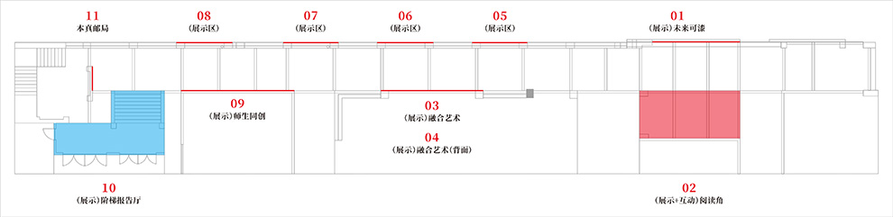
艺术长廊位于进入学校大堂的右侧,整体在保留原有空间上进行改造设计,合理规划七个版块内容,分别是:未来可漆、阅读角、融合艺术、展示区、师生同创、本真邮局、阶梯报告厅,通过以展示互动的方式进行呈现。

*艺术长廊平面布置图
B-01.未来可漆

*设计前现场照。

*设计后效果图。
本真始发站原为快递收取窗口,在三个柱体之间,我们以方通打底,面卡冲孔铝单板,营造点点星光氛围;以动车未来号为设计创意,整体采用曲面造型铝板,高铁门开启后可进入仓库区域;三条柱体在保留旧有蓝色马赛克的基础上,设计了站牌、吊牌等元素,模拟站台氛围,左侧“本真列车路线牌”可以看到每一站站名。

*完工后实景图。
B-02.阅读角

*设计前现场照。

*设计后效果图。
本真始发站原为快递收取窗口,在三个柱体之间,我们以方通打底,面卡冲孔铝单板,营造点点星光氛围;以动车未来号为设计创意,整体采用曲面造型铝板,高铁门开启后可进入仓库区域;三条柱体在保留旧有蓝色马赛克的基础上,设计了站牌、吊牌等元素,模拟站台氛围,左侧“本真列车路线牌”可以看到每一站站名。

*完工后实景图。

*完工后实景图。
B-03.融合艺术

*设计前现场照。

*设计后效果图。
本真始发站原为快递收取窗口,在三个柱体之间,我们以方通打底,面卡冲孔铝单板,营造点点星光氛围;以动车未来号为设计创意,整体采用曲面造型铝板,高铁门开启后可进入仓库区域;三条柱体在保留旧有蓝色马赛克的基础上,设计了站牌、吊牌等元素,模拟站台氛围,左侧“本真列车路线牌”可以看到每一站站名。

*完工后实景图。

*设计前现场照。

*设计后效果图。

*完工后实景图。
B-04.展示区

*设计前现场照。

*设计后效果图。

*设计后效果图。
本真始发站原为快递收取窗口,在三个柱体之间,我们以方通打底,面卡冲孔铝单板,营造点点星光氛围;以动车未来号为设计创意,整体采用曲面造型铝板,高铁门开启后可进入仓库区域;三条柱体在保留旧有蓝色马赛克的基础上,设计了站牌、吊牌等元素,模拟站台氛围,左侧“本真列车路线牌”可以看到每一站站名。

*完工后实景图。

*完工后实景图。
B-05.师生共创

*设计前现场照。

*设计后效果图。
本真始发站原为快递收取窗口,在三个柱体之间,我们以方通打底,面卡冲孔铝单板,营造点点星光氛围;以动车未来号为设计创意,整体采用曲面造型铝板,高铁门开启后可进入仓库区域;三条柱体在保留旧有蓝色马赛克的基础上,设计了站牌、吊牌等元素,模拟站台氛围,左侧“本真列车路线牌”可以看到每一站站名。

*完工后实景图。

*完工后实景图。
B-06.本真邮局

*设计前现场照。

*设计后效果图。
本真始发站原为快递收取窗口,在三个柱体之间,我们以方通打底,面卡冲孔铝单板,营造点点星光氛围;以动车未来号为设计创意,整体采用曲面造型铝板,高铁门开启后可进入仓库区域;三条柱体在保留旧有蓝色马赛克的基础上,设计了站牌、吊牌等元素,模拟站台氛围,左侧“本真列车路线牌”可以看到每一站站名。

*设计前现场照。

*完工后实景图。

*完工后实景图。
