A-项目背景
在继东莞市第六人民医院职防科普基地的策划设计落地后,迎来东莞市清溪医院科普基地的打造,我们从定位定点、内容规划、平面设计、空间效果、屏幕采购、视觉动态、软件编程、施工落地等全方位规划设计。
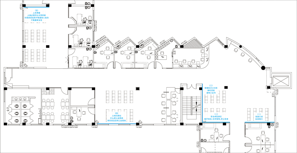
B-定位定点
为了让参观者有个舒适的观影体验,我们在该楼层相应空白的地方,将五个板块的内容按参观动线的合理需要规划至路径中。

C-党建引领
科室简介&三心服务&发展史&团队风采
党建引领及科室简介分为四个部分,分别为科室介绍、三心服务、科室发展史、团队风采;运用简洁的设计,整体以白色为主,蓝色为辅,用屏幕为载体进行宣传,内容磁吸可更换。

D-职业病危害区
噪声体验、化学毒物、粉尘危害

*效果图
职业病危害区设备展示,主要分为三块内容:噪声体验、化学毒物、粉尘危害,通过无线耳机和触摸屏的结合进行信息的互动。

*完工图
噪声体验:主要通过对噪声标准的科普、通过耳机来体验噪声分贝的不同程度、然后学习如何有效预防噪声保护我们的听力。
化学毒物:主要通过医师视屏科普的方式学习什么是化学中毒?比如常见正己烷、苯中毒、甲醛中毒等,通过动画宣传视屏的形式讲解职业病中毒如何有效的预防与控制,以达到安全的工作环境。
粉尘危害:主要讲述什么是尘肺病?尘肺病的病因有哪些?表现症状是怎么样?应该到那个科室就诊?如何治疗?如何预防?如何康复?通过动画视屏,实景图文说明等方式进行科普。

*开机画面。
E-健康知识科普
知识小问答&体检流程&毒物小全书

*效果图
知识健康小问答抢答可适用二人同时操作,上方屏幕为职业健康问题,下方为抢答A、B、C、D键,箱体内藏有主体及相应设备,选择题可以自行编辑与更改,通过二人抢答的形式,最终获胜者可以获得院方提供的小礼物一份。

*完工图
体检注意事项,用了卷帘的形式来设计,内容上运用卡通人物设计,营造趣味生动感。

*开机画面。

*飞屏展示效果
毒物小全书,分为:有毒化学物、有毒植物、有毒动物、有毒真菌、毒素毒药;用飞屏形式来展示,整体不锈钢烤漆造型,把下方<立式触摸屏幕>向上滑动,就可以把内容映射到上方显示屏中,展示各种毒物的理化性质、用途、如何进入人体、主要人体损害、防护措施、个人防护。
F-人体工厂
人体扫描仪&什么是心血管病&预防高血压和心血管病

*效果图
人体工厂分为三部分,分别为:人体扫描仪、什么是心血管病、预防高血压和心血管病。

*效果图

*实景图
人体扫描仪左边为屏幕及扫描仪,右边为一个人体模拟,参观者拿起扫描仪扫描屏幕中是不段浮动的条码即可弹出相关健康知识的视屏科普。

*实景图
什么是心血管病?预防高血压和心血管病这两部分,通过不锈钢烤漆丝印的形式体现,与旧有的窗户融入一体,在等待的过程中既可了解学习相应知识。

G-平衡膳食宝塔
人体测量&人体必需的七大营养素&中国居民指南平衡膳食八准则

*效果图
左边为:测量人体的体重,人们站上去,扫一扫二维码,即可把个人身高、体重、健康信息录入其中,个人当前健康现装说明,在屏幕上即可显示出来。

*实景图
右边为:人体必需的七大营养素、中国居民指南平衡膳食八准则,平衡膳食宝塔。中间有一个电动旋转膳食宝塔的模型,柜台上的三个屏幕,同时可以容纳三个人一起互动,可自我娱乐计算每日膳食营养评估计算。
H-使用讲解

*参观互动。

*使用讲解。

*交付培训。
